El Museo del Flamenco que la Junta de Andalucía de Juanma Moreno quiere proyectar en Jerez de la Frontera ya está más cerca, y en menos de dos años deberá estar lista. Este jueves por la mañana la propia empresa de construcción Diaz Cubero ha comunicado que la Consejería de Cultura y Patrimonio Histórico les ha adjudicado la construcción del nuevo Museo del Flamenco y Centro de Documentación de Flamenco en la ciudad. El importe de la construcción es de 4,8 millones más IVA, y el plazo de ejecución es de 23 meses.

A través de Twitter, Diaz Cubero se ha felicitado por una licitación de obras que busca promover la cultura de Jerez como cuna del Flamenco. El nuevo complejo "constituirá un equipamiento clave dentro de la estrategia de regeneración y revitalización del centro histórico de Jerez de la Frontera, que se convertirá en un espacio único en el mundo y punto de referencia para artistas, investigadores y aficionados a la cultura flamenca en general", añaden desde la constructora.
Hay que recordar que fue en marzo de este año cuando la Junta de Andalucía del Gobierno del Cambio anunció de manos de la consejera de Cultura y Patrimonio Histórico, Patricia del Pozo, la licitación de las obras de construcción del Museo Flamenco de Andalucía y el Centro Andaluz de Documentación del Flamenco por 6,8 millones de euros, de los que cinco millones corresponde a Fondos Feder y 1,8 millones a fondos autofinanciados.

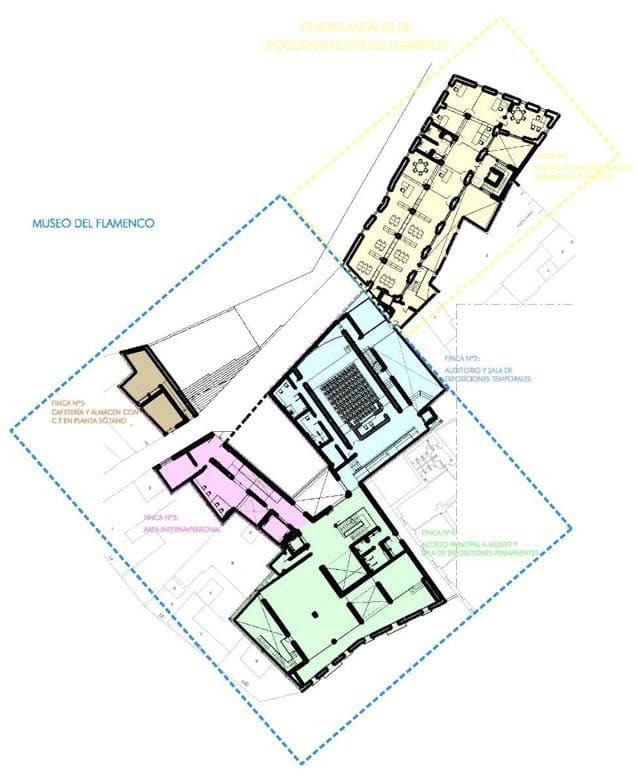
Desde la empresa adjudicataria manifiestan que "el Museo del Flamenco de Andalucía y el Centro Andaluz de Documentación del Flamenco (CADF), ambos espacios radicados en la Plaza Belén, centro histórico de Jerez de la Frontera, se construirán sobre un espacio edificable, conformado por un complejo conjunto de fincas y edificaciones. Por un lado, será objeto de una intervención de adaptación y reforma de un edificio existente y, por otro, de una obra de nueva construcción".

Esta nueva edificación "tendrá una superficie de 3.292,95 metros cuadrados: 2.401,43 destinados al Museo y 851,52 al Centro Andaluz de Documentación, disponiendo de varios edificios y solares independientes que han sido cedidos por el Ayuntamiento de Jerez de la Frontera".
Hay que reseñar que "la entrada principal será por la calle Barranco y contará con varias salas expositivas dedicadas a la historia y personalidades del cante, del toque y del baile. En otras salas se explicará su relación con otras culturas como el arte de la pintura o el vino de jerez. Además, contará con un auditorio para albergar espectáculos, exhibiciones cinematográficas, presentaciones y conferencias, así como una cafetería y una tienda".
Edificios a realizar en el proyecto del Museo del Flamenco
- Centro Andaluz de Documentación del Flamenco (C.A.D.F.)
- Auditorio polivalente y Salas de exposiciones temporales del Museo del Flamenco: El nuevo edificio a construir tendrá un uso polivalente y versátil, en el que puedan realizarse proyecciones de audiovisuales, conferencias, conciertos, etc
- Centro del Museo del Flamenco: Las salas de exposición permanentes se dedicarán a diversas exposiciones del patrimonio cultural del flamenco
- Servicios museísticos y administrativos del museo: dependencias, almacenes y oficinas
- Bar-Cafetería del Museo

Todo se implanta sobre cuatro fincas distintas. La idea es que tenga una imagen unitaria configurada por dos unidades de uso independientes y sectorizadas, pero comunicadas e interrelacionadas entre sí a través de la planta de nivel +1: por un lado el “Museo del Flamenco de Andalucía”, que se implantará y conformará sobre las fincas nº 1.2, 3 y 4; por otro, el Centro Andaluz de Documentación del Flamenco (CADF), que se implantará sobre la edificación existente en la finca nº1.1 de las Antiguas Carnicerías Viejas, reformada, adaptada y rehabilitada. Sobre la finca 2 se ha proyectado la edificación que constituirá el núcleo central y el espacio articulador del Museo, como centro de gravedad funcional y distribuidor de enlace entre los distintos usos, niveles y recorridos de este complejo edificio.
