El portal de anuncios Fotocasa tiene a la venta un increíble ático que está pendiente de construirse en Málaga. Estará frente a la playa y tendrá más de 300 metros cuadrados. Es prueba, una vez más, del peso que está adquiriendo esta provincia andaluza que recibe millones de turistas al año.
Probablemente estas viviendas que están aún por construirse pasen a ser parte de la red de casas lujosas de la provincia de Málaga. Sus características prometen ser impresionantes, por ello su precio actual es de 3.495.000 euros.

Este ático disponible en Fotocasa pertenecerá a una urbanización de 3 grandes edificaciones con un total de 71 viviendas, todas ellas en primera línea de playa, por la zona de Marín Carpena y Torre del Río. Un zona perfectamente conectada con el centro de la ciudad gracias a la línea de metro.

En cuanto al edificio podemos decir que tendrá zonas comunes propias en la que destacan sus tres piscinas, una climatizada y dos exteriores, el spa, el gimnasio y la sala audiovisual. Algo bastante novedoso es que los propietarios triunfarán si tienen hijos pequeños ya que la comunidad de vecinos disfrutará de una ludoteca y de hasta una enfermería.

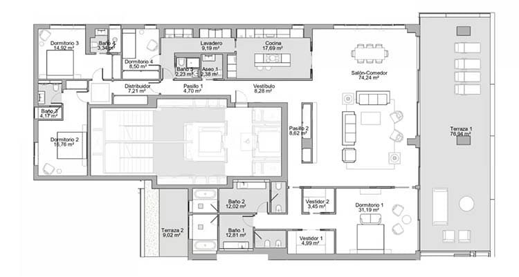
El piso, el más caro y lujoso del edificio por ser nada más y nada menos que el ático, tendrá unas amplias terrazas frente al mar. En este apartamento de 316 metros cuadrados podrás vivir preciosas veladas de verano y también tomar el sol en los días de inviernos con vistas panorámicas al mar Mediterráneo.

Siguiendo con las propiedades del edificio, será un rascacielos de 20 plantas con un diseño la mar de innovador, aprovechando una zona de Málaga aún no demasiado explotada, pero en pleno auge. Cerca de la zona estáel aeropuerto y una gran diversidad de servicios tanto recreativos como esenciales. Es, a día de hoy, el proyecto más exclusivo de la Costa del Sol.

Este ático tendrá 4 habitaciones y un total de 6 baños. Todo ello dispuesto en una sola planta en los futuros dueños podrán ver las preciosas vistas desde casi todos los puntos de la casa, además, el salón y el comedor están planteados para compartir la misma estancia, dando aún más sensación de infinita amplitud.

Características básicas del ático
- 316 metros cuadrados
- 4 habitaciones
- 6 baños
- 2 piscinas exteriores
- Piscina climatizada y spa
- Ludoteca
- Gimnasio
- Enfermería
- Garaje
- Aire acondicionado y calefacción
- Trastero
- De primera mano, a estrenar

Otras viviendas disponibles
Este ático se presenta como el más caro de la promoción, sin embargo hay algunos proyectos de viviendas más baratos, según la planta en la que se ubiquen y el tamaño. El precio más bajo lo tiene un piso de 3 dormitorios, por 773.000 euros y el precio menos elevado con 4 habitaciones es de 1.618.000 euros.
